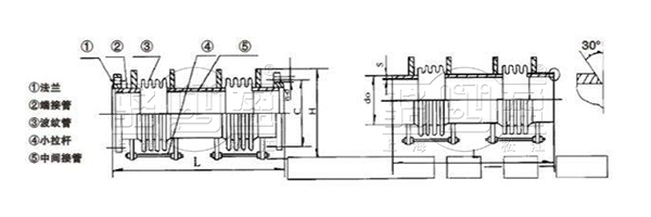
JXH型小拉桿橫向波紋補償器由兩段波紋管、中間接管及帶有限螺母的小拉桿等零件組成,它在吸收管系任意平面內的橫向位移,同時吸收軸向位移。小拉桿不能承受內壓推力。.用戶使用時若需要小拉桿,在安裝后務必將螺母松開并離天耳板(或撐板)一段距離(數值由由向補償量確定).若實際補償量大于樣本上的規定值(壽命≤1000次),產品在安裝后必須拆除小拉桿。
【產品名稱】:JXH型小拉桿橫向波紋補償器
【產品別名】:小拉桿波紋補償器,橫向波紋補償器
【產品規格】:【DN100mm-DN600mm】
【產品壓力】:0.6-1.6MPa
【產品】:
【適用范圍】:【弱酸、弱堿、弱腐蝕類、油、熱水、冷水等】
【產品材質】:碳鋼,球墨鑄鐵,不銹鋼.
【產品顏色】:藍色,可根據客戶要求調色.
【工作溫度】:-40度至80度
在線咨詢
購買熱線: 021-622-00727
JXH型小拉桿橫向波紋補償器習慣上也叫膨脹節,或伸縮節。小拉桿橫向型補償器屬于一種補償元件。利用其工作主體波紋管的有效伸縮變形,以吸收管線、導管、容器等由熱脹冷縮等原因而產生的尺寸變化,或補償管線、導管、容器等的軸向、橫向和角向位移。也可用于降噪減振。在現代工業中用途廣泛。產品適用于輸送海水、淡水、冷熱水、飲用水、生活污水、原油、燃油、潤滑油、成品油、空氣、煤氣、溫度不高于250度的蒸汽和顆粒粉狀等介質。
1.補償吸收管道軸向、橫向、角向熱變形。
2. 波紋補償器伸縮量,方便閥門管道的安裝與拆卸。
3.吸收設備振動,減少設備振動對管道的影響。
4.吸收地震、地陷對管道的變形量。
使用說明:
小拉桿橫向型波紋補償器除可以補償彎曲管道的橫向位移和角位移,同時也可以補償軸向位移。樣本中所列的軸向補償量及橫向補償量(X0、Y0 )均單獨用作軸向補償或橫向補償的很大值,此種情況應分別滿足以下關系式:
X1≤Xo Y1≤Yo
X1、Y1為單獨用作軸向補償或橫向補償的實際值
當補償器同時存在軸向位移和橫向位移時,兩種補償量(X1,Y1)的選取應滿足下列關系式:
此時,X1,Y1為同時存在軸向位移及橫向位移的實際值。
小拉桿橫向波紋補償器對支座作用力的計算:
某碳鋼管道,公稱通徑500mm,工作壓力0.6Mpa,介質溫度350攝氏度,環境很低溫度-100攝氏度,補償器安裝溫度20攝氏度,根據管道布局需安 裝一小拉桿橫向型波紋補償器,用以補償50mm的軸向位移及30mm的橫向位移,已知L=50,補償器疲勞破次數按15000次考慮,試計算支座A的受力。
1月26日,馬鞍山規模化生物天然氣工程試點項目在博望區丹陽鎮正式開工。據悉,該項目建設工期預計8個月,今年底可竣工,投產后年產生物天然氣400多萬立方米,并可產副產品碳基有機肥2萬多噸。
該項目于2015年7月1日獲省發改委和省農委批復,項目實施單位為市博瑞新能源科技有限公司,項目總投資7505萬元,其中中央預算內投資3000萬元,企業自籌資金4505萬元。該企業總工趙炳森介紹,該項目是將小麥、油菜等秸稈轉化成既~又節能的生物能源。一期項目投產后,年可消化秸稈2萬多噸,日產2萬方沼氣,經過提純變成1.2萬方生物質天然氣。同時其產生的沼渣經過深加工后,成為碳基有機肥添加劑,制成肥料后可有效地改善土壤結構。
駱盈生產的小拉桿橫向型補償器屬于一種補償元件。利用其工作主體波紋管的有效伸縮變形,以吸收管線、導管、容器等由熱脹冷縮等原因而產生的尺寸變化,或補償管線、導管、容器等的軸向、橫向和角向位移。也可用于降噪減振。在現代工業中用途廣泛。產品適用于輸送海水、淡水、冷熱水、飲用水、生活污水、原油、燃油、潤滑油、成品油、空氣、煤氣、溫度不高于250度的蒸汽和顆粒粉狀等介質。該項目采用小拉桿橫向波紋補償器的情況下能夠提高管線整體的穩定性,并且針對管線的位移提供充足的補償作用。
記者從博望區發改委了解到,該項目主要是讓農民承包田里秸稈實現綜合利用,項目投產后,可有效解決農民秸稈無法處理問題,實現秸稈禁燒,改善空氣環境。為推進該試點項目按預期竣工,該區從去年7月份起就成立了項目推進優異小組,將該項目列入區重大項目之一,監督秸稈原料庫、秸稈青貯池等設施及配套工程建設。

請點擊圖片看大圖
|
公稱通徑 Nominal Diameter DN |
壓力Pressure 0.6Mpa | 壓力1.0Mpa | 壓力1.6Mpa |
有效面積 Available area cm2 |
焊接端管 Soldering end ring mm |
總長 Total length 1mm |
|||
|
軸向位移/軸向剛度 Axial displacement /Axial Stiffness |
橫向位移/橫向剛度 Horizontal displacement /Horizontal Stiffness |
軸向位移/軸向剛度 Axial displacement /Axial Stiffness |
橫向位移/橫向剛度 Horizontal displacement /Horizontal Stiffness |
軸向位移/軸向剛度 Axial displacement /Axial Stiffness |
橫向位移/橫向剛度 Horizontal displacement /Horizontal Stiffness |
||||
| 100 | 32/210 | 96/8.0 | 28/252 | 86/96 | 26/302 | 78/12 | 154 | 108*4 | 1000 |
| 200/2.0 | 180/25 | 162/3.1 | 1500 | ||||||
| 306/0.89 | 27/11 | 284/1.3 | 2000 | ||||||
| 411/0.50 | 370/06 | 333/0.75 | 2500 | ||||||
| 125 | 33/170 | 83/18 | 31/204 | 78/216 | 29/245 | 75/25.9 | 180 | 133*4 | 1000 |
| 115/6.8 | 109/82 | 103/9.8 | 1500 | ||||||
| 198/3.5 | 188/4.2 | 178/5.0 | 2000 | ||||||
| 269/1.8 | 255/2.2 | 242/2.6 | 2500 | ||||||
| 150 | 32/290 | 65/21 | 30/348 | 61/252 | 27/417 | 58/30.2 | 299 | 159*45 | 1000 |
| 136/54 | 129/65 | 122/7.8 | 1500 | ||||||
| 107/2.4 | 197/28 | 186/3.5 | 2000 | ||||||
| 279/1.4 | 265/168 | 251/2.1 | 2500 | ||||||
| 200 | 48/326 | 72/47 | 43/391 | 68/56.4 | 40/469 | 65/70.5 | 531 | 219*6 | 1000 |
| 160/11 | 152/13.2 | 144/16.5 | 1500 | ||||||
| 250/5.0 | 237/60 | 225/7.5 | 2000 | ||||||
| 341/2.8 | 324/3.4 | 291/4.1 | 2500 | ||||||
| 250 | 46/400 | 127/20 | 43/480 | 114/25 | 38/576 | 108/30 | 774 | 273*8 | 1500 |
| 199/9.0 | 179/108 | 170/13.5 | 2000 | ||||||
| 271/5.0 | 257/60 | 231/7.5 | 2500 | ||||||
| 343/3.2 | 325/38 | 293/4.6 | 3000 | ||||||
| 300 | 59/336 | 134/25 | 56/403 | 127/30 | 50/483 | 121/36 | 1069 | 325*8 | 1500 |
| 213/11 | 202/13.2 | 192/15.8 | 2000 | ||||||
| 292/6.0 | 277/7.2 | 263/8.6 | 2500 | ||||||
| 372/3.8 | 353/4.6 | 335/5.4 | 3000 | ||||||
| 350 | 58/336 | 107/40 | 55/402 | 102/44 | 52/442 | 96/48 | 1263 | 377*8 | 1500 |
| 178/16 | 167/17 | 161/22 | 2000 | ||||||
| 250/8.5 | 237/10 | 226/12 | 2500 | ||||||
| 322/5.3 | 306/69 | 290/9.6 | 3000 | ||||||
| 400 | 57/415 | 92/58 | 54/48 | 87/63 | 51/492 | 83/69 | 1612 | 426*8 | 1500 |
| 154/23 | 142/25 | 135/27 | 2000 | ||||||
| 215/12 | 204/13 | 196/15 | 2500 | ||||||
| 278/7.7 | 264/9 | 250/11 | 3000 | ||||||
| 450 | 55/415 | 81/80 | 52/465 | 77/88 | 49/484 | 73/96 | 1995 | 478*8 | 1500 |
| 135/32 | 128/35 | 122/38 | 2000 | ||||||
| 189/17 | 180/19 | 171/21 | 2500 | ||||||
| 243/11 | 230/12 | 218/13 | 3000 | ||||||
| 500 | 90/746 | 36/241 | 72/895 | 32/260 | 58/984 | 29/281 | 2625 | 529*10 | 1400 |
| 68/89 | 62/96 | 56/104 | 1700 | ||||||
| 102/42 | 92/45 | 83/49 | 2000 | ||||||
| 126/68 | 113/30 | 102/32 | 2200 | ||||||
| 166/18 | 149/19 | 134/21 | 2500 | ||||||
| 192/12 | 178/13 | 160/14 | 2800 | ||||||
| 600 | 94/820 | 42/208 | 85/886 | 38/224 | 75/948 | 34/242 | 3590 | 630*10 | 1500 |
| 71/102 | 64/110 | 58/118 | 1800 | ||||||
| 106/47 | 95/51 | 86/55 | 2200 | ||||||
| 135/30 | 121/32 | 111/35 | 2500 | ||||||
| 168/21 | 156/23 | 141/25 | 2800 | ||||||
| 199/14 | 183/15 | 168/17 | 3200 | ||||||
注:大于DN600的均可按用戶要求制造
Note:custom-made products(>DN600) are available
專業制造、專業服務,駱盈為你創造更多價值 !
不斷提升服務質量,精益求精,“真誠的服務”是駱盈永恒的主題。駱盈嚴格按照 要求,質量嚴格把關,責任到人,確保生產、銷售、服務的健康運行。加強與用戶溝通,竭誠為廣大客戶提供優質產品,至善至美服務,特此駱盈做出如下承諾:
產品標準
產品嚴格按照中國 GB、HG 標準和美國 API 等標準設計、制造、驗收。密封面硬度達到規定要求,寬度超過標準。
售前服務
產品介紹,技術交流,非標產品設計,疑難解答。
售中服務
1、守信合同,保證及時供貨,隨時保持與客戶聯系
2、對特殊或復雜的產品,我廠安排技術人員對用戶進行產品使用、故障排除、調式及維修進行培訓和指導。
售后服務
1、駱盈產品質保期為自出廠起 12 個月,實行“三包”服務(包退、包換、包修)。
2、產品在使用中我廠定期組織技術、檢查人員進行訪問,征詢用戶對產品質量、使用狀況、改進意見等方面的反饋,以便進一步提高產品質量。
3、對用戶投訴產品質量問題,快速做出反映,售后服務人員在 24-36 小時(省外 48 小時)趕赴現場。
4、對售后服務,要求用戶填寫服務后的質量反饋表,并做出鑒定意見,共同提高駱盈的產品質量與服務質量。
1、客戶采購清單請傳真至 021-64207088 E-mail:luoying@luoyingsh.com,或來電咨詢 021-62212627。
2、收到客戶采購清單,為客戶提供產品型號選型與報價(價格清單)。
3、具體商定:交貨期、特殊要求等事宜。
訂貨須知
1、客戶對產品有特殊要求,須在訂貨合同中提供以下說明:
(1)結構長度
(2)連接形式
(3)公稱直徑、全通徑、縮徑、管道尺寸
(4)用介質及溫度、壓力范圍
(5)實驗、檢驗標準及其他要求本廠可根據客戶特殊要求配置定做和設計特殊產品。
2、本廠可根據客戶特殊要求配置定做和設計特殊產品。
3、如由客戶提供確定的產品類型和型號時,客戶應正確說明其型號的含義和要求,在供需雙方理解一致的條件下簽訂合同。
您也可以聯系在線客服